Woonoppervlakte
Circa 115 m²
Perceeloppervlakte
Circa 195 m²
Bouwjaar
Gebouwd in 1904
Aantal kamers
6 kamers (3 slaapkamers)

Galamagracht 7

8651 EB, IJlst (Fryslân)

Wonen in het historische centrum van IJlst is wonen in een de bijzondere sfeer van weleer, is wonen in een pand met een verhaal. Maar ook wonen in gezelligheid, vriendelijkheid en gemoedelijkheid. Lijkt dit je wel wat? Dan hebben wij nu een woning voor je in de aanbieding die werkelijk uit z'n voegen barst van de sfeer. Dit is echt een woning met geschiedenis. Welkom aan de Galamagracht!

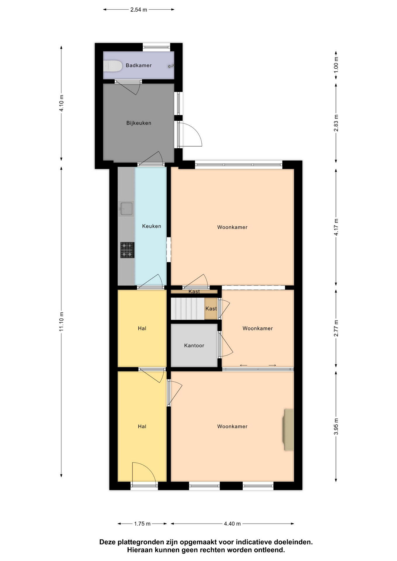
Zodra je het huis binnenstapt word je getrakteerd op mooie historische elementen. Een balkenplafond, een schouw en natuurlijk glas-in-lood ramen. De zitkamer aan de voorzijde geeft je een fraai zicht op de gracht. Er is een tussenkamer, en een woonkamer aan de achterzijde. Deze geeft je weer toegang tot de keuken. Via de keuken kom je in de bijkeuken met toilet en douche.

Op de verdieping vind je een royale overloop en drie slaapkamers. Ook hier weer veel sfeer maar ook veel mogelijkheden.

En dan de achtertuin. Beschut, veel privacy, en door de diepte vrijwel de gehele dag zon. Er is een houten schuurtje voor het bergen van je tuinspullen.

Denk je eens in wat voor mogelijkheden dit huis te allemaal biedt. Natuurlijk, je zult het waarschijnlijk willen moderniseren, maar dan kun je er ook echt iets moois van maken, geheel naar je eigen smaak.
Voor meer info bekijk ook even de video en de eigen website van deze woning. En ben je dan net zo enthousiast als wij zijn? Dan nodigen we je graag uit voor een bezichtiging. We laten deze beleving met plezier aan je zien. Tot ziens!

Plattegronden

Overdracht

Vraagprijs
€ 295.000 k.k.
Status
Verkocht
Aanvaarding
In overleg

Bouw

Object type
Eengezinswoning, vrijstaande woning
Soort bouw
Bestaande bouw
Bouwjaar
1904
Soort dak
Schilddak bedekt met pannen

Oppervlakte en inhoud

Woonoppervlakte
115 m²
Perceeloppervlakte
195 m²
Inhoud
320 m³
Externe bergruimte
8 m²

Indeling

Aantal kamers
6 kamers (3 slaapkamers)
Aantal woonlagen
2 woonlagen

Energie

Isolatie
Dubbel glas
Verwarming
Gaskachels
Warm water
Geiser eigendom

Buitenruimte

Tuin
Achtertuin
Afmetingen achtertuin
80 m² (16 meter diep en 5 meter breed)
ligging tuin
Gelegen op het noordoosten

Bergruimte

Schuur / berging
Vrijstaande houten berging

Garage

Soort garage
Geen garage

Parkeergelegenheid

Soort parkeergelegenheid
Openbaar parkeren

Indicatie hypotheeklasten

Eigen inleg:
Spaargeld / overwaarde

Rente:
Laagste 10-jaars rente

Laagste 10-jaars rente

2,76% - Centraal Beheer Groen... - NHG


2,98% - Centraal Beheer Groen... - 80%

Laagste 20-jaars rente

3,19% - Centraal Beheer Groen... - NHG


3,31% - Centraal Beheer Groen... - 80%

Laagste 30-jaars rente

3,34% - Centraal Beheer Groen... - NHG


3,47% - Centraal Beheer Groen... - 80%


Hypotheek:

Bruto maandlasten: € 0 p/m

Netto maandlasten: € 0 p/m

Hoe berekenen we dit?

Het rentepercentage is gebaseerd op de laagste 10-jaars vaste rente voor één hypotheekdeel. De vermelde rente (2.76% met NHG) is gecontroleerd op 15-07-2025. Deze berekening is gebaseerd op een annuïteitenhypotheek die volledig wordt afgelost, waarbij de maandlasten gedurende de gehele looptijd gelijk blijven. De werkelijke rente en netto maandlasten kunnen variëren, afhankelijk van uw persoonlijke situatie en de hypotheekverstrekker. Raadpleeg een financieel adviseur voor een nauwkeurige berekening en advies. Aan deze berekening kunnen geen rechten worden ontleend; het dient enkel als indicatie.

Documentatie

Zonnegrenzen bekijken

Op de kaart

Inwoners in IJlst

Cijfers voor postcodegebied 8651

Totaal aantal inwoners
3010 inwoners
Mannen
50%
Vrouwen
50%

Inwoners in IJlst

Cijfers voor postcodegebied 8651

tot 15 jaar
15%
15 tot 25 jaar
12%
25 tot 35 jaar
18%
45 tot 65 jaar
31%
65 en ouder
23%

Huishoudens in IJlst

Cijfers voor postcodegebied 8651

Eenpersoons zonder kinderen
30%
Meerpersoons zonder kinderen
35%
Huishoudens zonder kinderen
65%

Huishoudens in IJlst

Cijfers voor postcodegebied 8651

Huishoudens met één kind
7%
Huishoudens met meerdere kinderen
28%
Huishoudens met kinderen
35%

Woningen in IJlst

Cijfers voor postcodegebied 8651

Woningen voor 1945
15%
Woningen tussen 1945 en 1965
6%
Woningen tussen 1965 en 1975
34%
Woningen tussen 1975 en 1985
17%
Woningen tussen 1985 en 1995
10%

Woningen in IJlst

Cijfers voor postcodegebied 8651

Woningen tussen 1995 en 2005
16%
Woningen tussen 2005 en 2015
2%
Woningen na 2015
1%
Huurwoningen
30%
Koopwoningen
70%

Overige in IJlst

Cijfers voor postcodegebied 8651

Gemiddelde WOZ waarde
€ 221.000,-
Personen onder de 65 met uitkering
Niet beschikbaar

Overige in IJlst

Cijfers voor postcodegebied 8651

Adressen per km²
402
Stedelijkheid (schaal 1 op 5)
20%
Postcode kaart 8651 Gemeente kaart súdwest-fryslân

Korte feiten over IJlst

IJlst (Fries: Drylts) is een stad in de gemeente Súdwest-Fryslân, in de Nederlandse provincie Friesland, die ligt ten noorden van Heeg en ten zuidwesten van de grotere stad Sneek. Door de stad loopt de rivier de Geeuw, die in de stad samenvloeit met de rivier de Ee. De Geeuw maakt deel uit van de verbinding Sneekermeer - Sneek - IJlst - Heeg - Heegermeer en is, met name in de zomer, een druk bevaren waterweg.

Kuperus Heeringa Makelaardij

Indien u vragen heeft of u wilt een bezichtiging inplannen, dan kunt u gebruik maken van het formulier hiernaast. Er zal daarna op korte termijn contact met u worden opgenomen.

Kuperus Heeringa Makelaardij

Wij zijn Klaasjan Kuperus, Saskia Heeringa en Brecht de Vries. Klaasjan is een gecertificeerd makelaar met een bouwkundige achtergrond, Saskia is een professionele styliste en Brecht is onze assistent-makelaar. Onze passie voor huizen en mensen heeft ons in de makelaardij gebracht! We begrijpen dat de aankoop of verkoop van een woning uniek, bijzonder en emotioneel is. Daarom staan persoonlijke aandacht en betrokkenheid bij ons voorop. We behandelen elke verkoop of aankoop alsof het ons eigen huis is en vinden het belangrijk om een persoonlijke band te hebben met onze klanten. We houden van een grapje op z'n tijd en plezier staat centraal in ons werk.

Onze visie - We maken van jouw huis een unieke beleving.

Kuperus Heeringa Makelaardij
Reviews Kuperus Heeringa Makelaardij

Galamagracht 7, IJlst

€ 295.000 k.k. - Verkocht

Helaas, deze woning is verkocht!

Net te laat, deze woning is al verkocht. Laat een zoekopdracht bij ons achter zodat wij u direct kunnen helpen wanneer er nieuw aanbod beschikbaar komt.